Tutaj można skonfigurować indywidualnie swój E-ChainSystem®. Wszystkie wprowadzone wartości i zmiany są przenoszone do listy części znajdującej się na końcu strony.
Seria E4.21 z ochroną przed wyładowaniami elektrostatycznymi (ESD) - prowadnik, otwierany zatrzaskowo wzdłuż obu stron
System E4.1 z ochroną przed wyładowaniami elektrostatycznymi (ESD) łączy w sobie wszystkie zalety
swoich trzech poprzedników i jest najlepszym systemem w ofercie e-prowadników igus®. Seria E4.1 charakteryzuje się większą wytrzymałością przy takich samych lub nawet mniejszych wymiarach w porównaniu do poprzednich serii. Niemal wszystkie akcesoria
i wymiary montażowe są
identyczne. System igus® E4.1 pozwala jeszcze bardziej
wydłużyć żywotność Państwa rozwiązania,
przy jednoczesnym obniżeniu kosztów.
- Konstrukcja z uchwytem tylnym zapewnia najlepszą stabilność boczną,
pozwalając na pracę przy wysokich siłach ścinających na długich drogach
przesuwu oraz znacznych długościach samonośnych.
- System świetnie sprawdza się w zastosowaniach wymagających montażu na boku
- Zniejszający hałas hamulec oraz
opcjonalny tłumik
- Wewnętrzne i zewnętrzne ogniwa umożliwiające szybki montaż,
z naprężeniem wstępnym lub bez
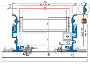
Szerokości wewnętrzne Bi: 30 do 80 mm
Promień zgięcia R: 48 do 100 mm
Skok: 30,5 mm na ogniwo = 33 ogniwa/m
(1007 mm)
A=Koniec ruchomy, B=Koniec stały
Skok: 30,5 mm
Liczba ogniw na m: 33 ogniwa
Przesuw: S
Długość prowadnika = S/2 + K